4879 NE Granite Ave, Albany, OR 97321
Toggle Navigation
Images
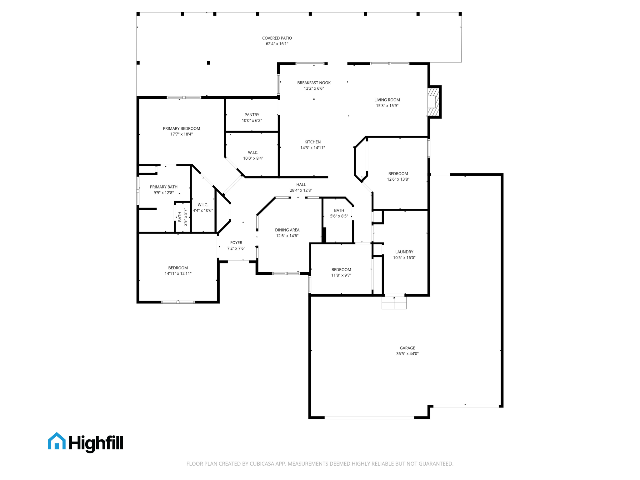
Floor Plans
Map
4879 NE Granite Ave
Albany, OR 97321
Scroll to Content
Images
Slideshow
Photo Grid
Hide
Previous
Next
Show more
Floor Plans
Slideshow
Photo Grid
Hide
Previous
Next